雙地鐵,通勤便利!有套一/二/三戶型!成都柚米寓順城店保租房介紹

💡為方便大家瞭解成都房產情況租房,更方便大家租房、買房

🏠小編建立了“住在成都”欄目租房,將於每週一至週五準時帶來保障房、人才驛站、人才住房、長租公寓資訊盤點

感興趣的小夥伴可以每天來看看哦~

今天小編來給大家介紹

青羊區保租房專案——柚米寓順城店

一起來看看周邊配套

還有戶型情況吧

雙地鐵,通勤便利!有套一/二/三戶型!成都柚米寓順城店保租房介紹

PART

01

成都柚米寓順城店保租房專案地址

四川省成都市青羊區玉帶橋街39號院租房

PART

02

成都柚米寓順城店保租房周邊配套

交通情況:距離地鐵4號線太升南路站約604米,距離地鐵1號線/4號線騾馬市站約605米,距離地鐵1號線文殊院站約628米租房

休閒資源:鄰近東華門遺址公園、木蘭花塢、成都市人民公園租房

教育資源:周邊有四川省直屬機關玉泉幼兒園、成都市第五幼兒園、成都市鼓樓小學、成都市第十一中學校(玉沙路校區)、成都中醫藥大學(汪家拐校區)租房

展開全文

周邊商場:周邊有富力廣場、恒大廣場租房

雙地鐵,通勤便利!有套一/二/三戶型!成都柚米寓順城店保租房介紹

來源:地圖截圖

PART

03

成都柚米寓順城店保租房房源資訊

成都柚米寓順城店保租房是住宅型別房源,產權年限為70年,由成都市青羊區國投建設有限公司開放建設租房。建面區間約為37-75平方米,總戶數為49套,戶型為套一、套二、套三,可整租合租,物業費為2.5平方米,民用水電標準。

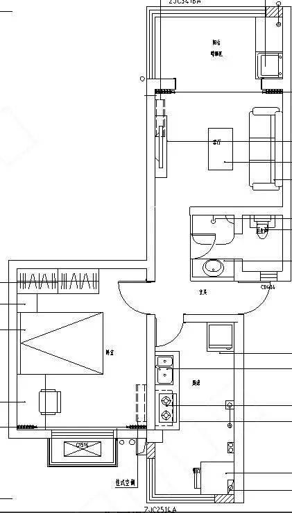
戶型圖租房

套一租房:一室一廳一衛 建面約為53.7平方米

套二租房:兩室一廳一衛 建面約為71平方米

套三租房:戶型圖暫無

雙地鐵,通勤便利!有套一/二/三戶型!成都柚米寓順城店保租房介紹

來源:天府住房通

PART

04

成都柚米寓順城店保租房房屋配置

所有房源均採用現代簡約的裝修設計風格,拎包入住,戶內配備熱水器、洗衣機、冰箱、空調、燃氣灶等生活家電,床、床墊、茶几、餐桌、沙發、辦公書桌亦一應俱全租房

雙地鐵,通勤便利!有套一/二/三戶型!成都柚米寓順城店保租房介紹

雙地鐵,通勤便利!有套一/二/三戶型!成都柚米寓順城店保租房介紹 雙地鐵,通勤便利!有套一/二/三戶型!成都柚米寓順城店保租房介紹 雙地鐵,通勤便利!有套一/二/三戶型!成都柚米寓順城店保租房介紹

來源:天府住房通

PART

05

成都柚米寓順城店保租房登記及租金情況

登記情況:2026年3月首次推出,3月15日17:00結束登記報名租房。一批次推出房源46套(82間),套一、二、三戶型。目前該專案即將在2026年3月19日9:00至2026年3月23日16:00或房源全部被選定時截止選房。

租金價格:專案租金為35.64元/平方米/月,一批次房源價格在1167.92-1955.21元之間租房

登記入口:成都市住房保障服務平臺、天府市民雲APP租房

推薦工具租房

本站內容來自使用者投稿,如果侵犯了您的權利,請與我們聯絡刪除。聯絡郵箱:[email protected]

本文連結://m.jnhjhw.com/post/22051.html

🌐 /